Ürünler

YİÇ-2170 Çift Kat Çelik

Çift Kat / Çelik / YIC-2170-CIFT-KAT-CELIK

Proje Açıklaması

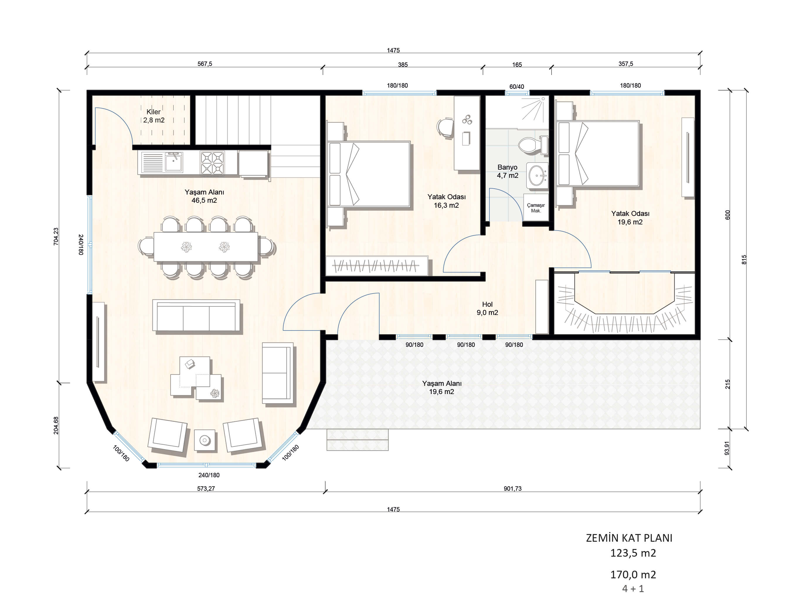
Toplam Net: 170m2 2 Veranda/28,6m² 4 Yatak Odası/58,5m² 1 Banyo/4,7m² 1 Salon + Mutfak/46,5m²

Toplam Net: 170m2

2 Veranda/28,6m²

4 Yatak Odası/58,5m²

1 Salon + Mutfak/46,5m²

Proje Planları

2.Kat Planı
2.Kat Planı
1.Kat Planı
1.Kat Planı

Benzer Projeler

YİÇ-2120 Çift Kat Çelik

Çift Kat / Çelik

YİÇ-2120 Çift Kat Çelik

YİÇ-2167 Çift Kat Çelik

Çift Kat / Çelik

YİÇ-2167 Çift Kat Çelik

YİÇ-2174 Çift Kat Çelik

Çift Kat / Çelik

YİÇ-2174 Çift Kat Çelik